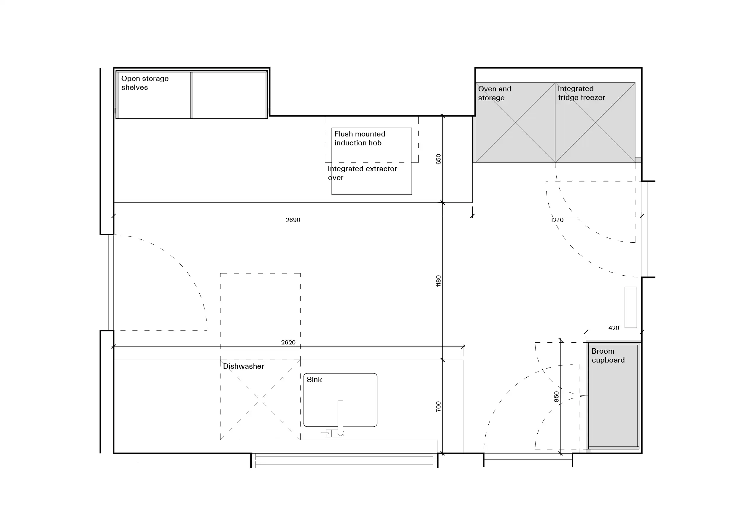
Situated in the rear return of an East London flat, this cool, contemporary kitchen demonstrates Uncommon’s Core system, an ‘almost-bespoke’ modular range utilising parametric cabinet designs for a more affordable project. Each unit can be custom sized to ensure a perfect fit, crucial in a Victorian property with its original chimney breast still in place. The challenge was to work with, rather than around, this feature, making sure it never felt like an obstacle that compromised the design.















