CS46
Bespoke

A contemporary kitchen in a grand Victorian farmhouse 1

Does this caption preview?
No items found.

In this intriguing period property, our bespoke plywood cabinetry demonstrates its enduring versatility. With its towering 3.65 m ceilings, diamond-pattern leaded windows, painted brick walls and match boarding, the space combines grandeur with warmth and character. A traditional Shaker style would have been expected in a house like this; instead, the client trusted us to complement the architecture with a contemporary plywood design.

When the family first moved in, the original kitchen occupied the same room but felt confined. A vast chimney breast housing an Aga dominated one wall, with the working area awkwardly squeezed beneath the windows. Despite the generous proportions, the usable space was tight, with a dining table in the centre and a sofa tucked beneath the stairs.

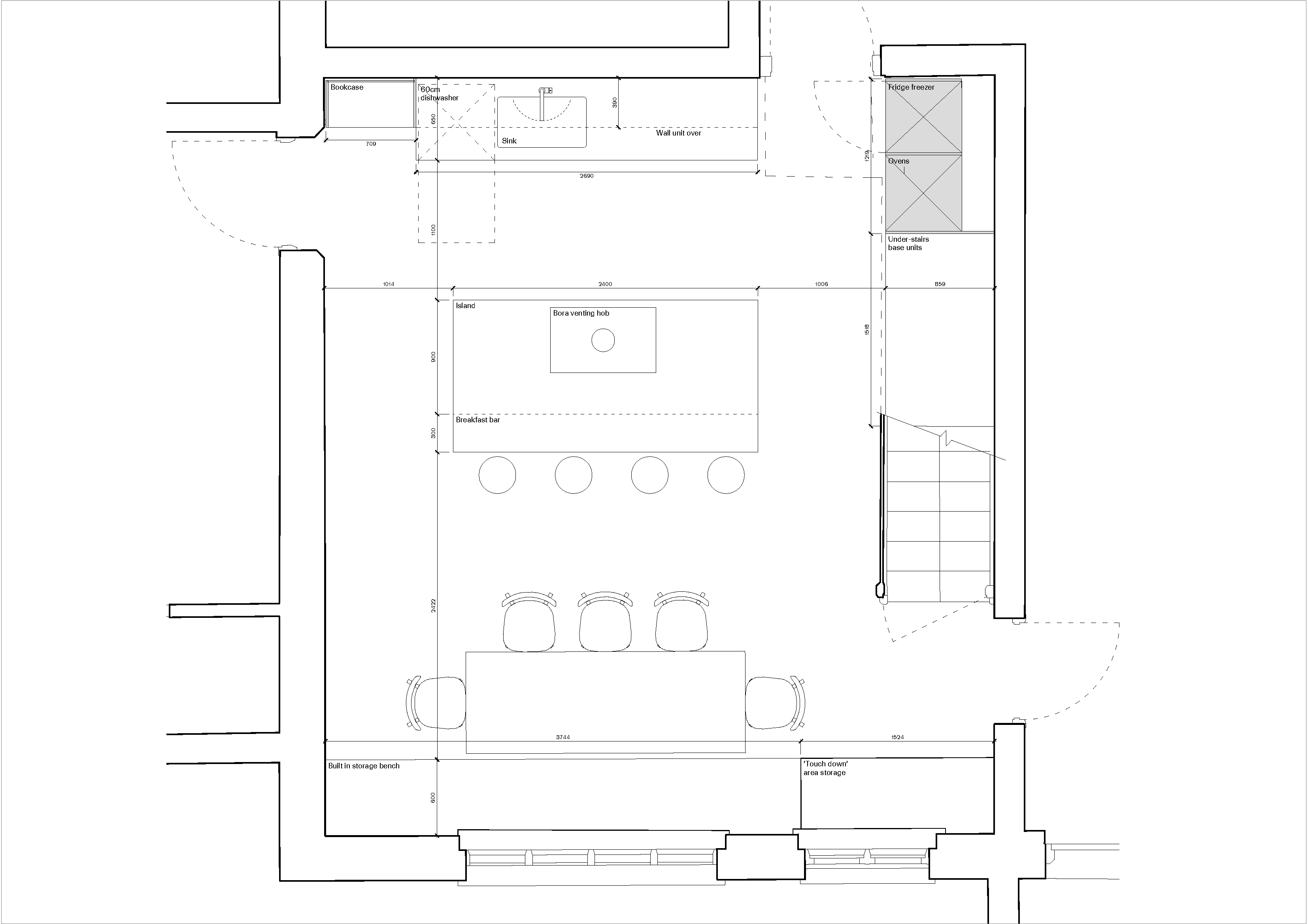
Bespoke plywood kitchen island layout in Victorian farmhouse.
No items found.

Working with architects Theis and Khan, the clients removed the chimney entirely, which was an inspired decision that unlocked the room’s potential and allowed us to introduce a central island and cabinetry beneath the staircase. Early discussions focused on whether the island should hold the sink or the hob. We often advise that the sink (typically the messiest zone) is placed against the wall, leaving the island for cooking as a more engaging, social focal point.


Tall fridge and oven housings now sit under the stairs, where our minimal Linear cabinetry style responds to the geometry above. Elsewhere, our trademark Edge style reveals materiality and adds warmth suited to the home’s period charm. The oak-veneered birch plywood used throughout feels timeless in this setting.

Details

Colour: Rust and maple veneer

Cabinet style: Overlay and Edge

Handle type: Recessed Round

Product type: Bespoke

Sink: Franke Mythos 55cm stainless steel undermounted

Worktop: 20mm Caesarstone, colour Topus Concrete

Appliances: AEG

Architect: BAT Studio Architects

Photographer: Ruth Ward

Under the window, we designed a practical touch-down area that supports the family’s everyday routines: a bank of drawers and cupboards providing space to drop keys and mail upon entering. It’s one of many details that make the kitchen feel connected to the rhythms of daily life.


The floor was also completely reimagined. After installing underfloor heating, terracotta-coloured porcelain tiles were laid, a practical and contemporary nod to the old quarry tiles in the hallway beyond.

Bespoke plywood cutlery drawers

Although the kitchen is unmistakably modern, it preserves the spirit of the original house. Deep pink and dark green cabinetry temper the height of the room, creating an atmosphere that is bold yet inviting. Our built-in bench with hidden storage, paired with a vintage dining table and chairs, links the new design to the home’s lived-in character.


The result is a kitchen that bridges eras and celebrates plywood’s adaptability across architectural styles, embodying Uncommon’s belief in design that endures through thoughtful materiality and modern living: modern in function and form, yet perfectly at ease within its period home. It reflects how our architectural approach to bespoke kitchen design can unlock  functional potential and create space for contemporary family life.

Client’s view


“We chose Uncommon Projects after a strong recommendation from our architects, and once we saw the kitchens in person we knew we wanted to work with them. The design process was a delight. The team’s attention to detail was incredibly reassuring, and Alan struck the perfect balance of confident guidance and genuine collaboration.

“We loved the warmth and detail of the plywood. It feels contemporary and classic at the same time, with a cosy, Scandinavian quality. Nothing about the kitchen feels cold or unwelcoming. The plywood is like stepping into one big hug.

“We’re thrilled with the colours and the exceptional quality of the finish. Every drawer is a pleasure to use and everything fits perfectly, even against our uneven brick walls. The team also worked brilliantly with our other suppliers and builders, which took a huge amount of work off our shoulders.

“We now spend so much time in the kitchen. It’s become the central hub of the house and brings daily pleasure. We cook more slowly and enjoy the space more fully because it feels so good to be in.”

Becky and Pete

More case studies

View all
CS46
Bespoke

A contemporary plywood kitchen in a grand Victorian farmhouse

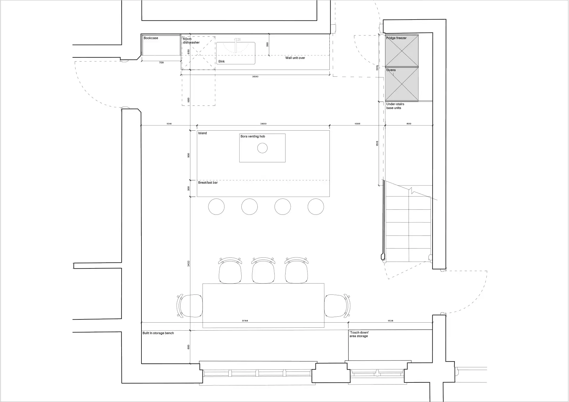
Bespoke plywood kitchen island layout in Victorian farmhouse.

A contemporary plywood kitchen in a grand Victorian farmhouse

In this intriguing period property, our bespoke plywood cabinetry demonstrates its enduring versatility. With its towering 3.65 m ceilings, diamond-pattern leaded windows, painted brick walls and match boarding, the space combines grandeur with warmth and character. A traditional Shaker style would have been expected in a house like this; instead, the client trusted us to complement the architecture with a contemporary plywood design.

When the family first moved in, the original kitchen occupied the same room but felt confined. A vast chimney breast housing an Aga dominated one wall, with the working area awkwardly squeezed beneath the windows. Despite the generous proportions, the usable space was tight, with a dining table in the centre and a sofa tucked beneath the stairs.

Bespoke plywood kitchen island layout in Victorian farmhouse.

Working with architects Theis and Khan, the clients removed the chimney entirely, which was an inspired decision that unlocked the room’s potential and allowed us to introduce a central island and cabinetry beneath the staircase. Early discussions focused on whether the island should hold the sink or the hob. We often advise that the sink (typically the messiest zone) is placed against the wall, leaving the island for cooking as a more engaging, social focal point.


Tall fridge and oven housings now sit under the stairs, where our minimal Linear cabinetry style responds to the geometry above. Elsewhere, our trademark Edge style reveals materiality and adds warmth suited to the home’s period charm. The oak-veneered birch plywood used throughout feels timeless in this setting.

No items found.
Exterior of Victorian farmhouse featuring bespoke plywood kitchen

Under the window, we designed a practical touch-down area that supports the family’s everyday routines: a bank of drawers and cupboards providing space to drop keys and mail upon entering. It’s one of many details that make the kitchen feel connected to the rhythms of daily life.


The floor was also completely reimagined. After installing underfloor heating, terracotta-coloured porcelain tiles were laid, a practical and contemporary nod to the old quarry tiles in the hallway beyond.

Bespoke plywood cutlery drawers

Although the kitchen is unmistakably modern, it preserves the spirit of the original house. Deep pink and dark green cabinetry temper the height of the room, creating an atmosphere that is bold yet inviting. Our built-in bench with hidden storage, paired with a vintage dining table and chairs, links the new design to the home’s lived-in character.


The result is a kitchen that bridges eras and celebrates plywood’s adaptability across architectural styles, embodying Uncommon’s belief in design that endures through thoughtful materiality and modern living: modern in function and form, yet perfectly at ease within its period home. It reflects how our architectural approach to bespoke kitchen design can unlock  functional potential and create space for contemporary family life.

Client’s view


“We chose Uncommon Projects after a strong recommendation from our architects, and once we saw the kitchens in person we knew we wanted to work with them. The design process was a delight. The team’s attention to detail was incredibly reassuring, and Alan struck the perfect balance of confident guidance and genuine collaboration.

“We loved the warmth and detail of the plywood. It feels contemporary and classic at the same time, with a cosy, Scandinavian quality. Nothing about the kitchen feels cold or unwelcoming. The plywood is like stepping into one big hug.

“We’re thrilled with the colours and the exceptional quality of the finish. Every drawer is a pleasure to use and everything fits perfectly, even against our uneven brick walls. The team also worked brilliantly with our other suppliers and builders, which took a huge amount of work off our shoulders.

“We now spend so much time in the kitchen. It’s become the central hub of the house and brings daily pleasure. We cook more slowly and enjoy the space more fully because it feels so good to be in.”

Becky and Pete

Bespoke plywood storage benches in open plan kitchen

Get started

No matter how modest your vision or grand your design, it all starts with a conversation.
Make enquiry

More case studies

View all
CS46
Bespoke

A contemporary plywood kitchen in a grand Victorian farmhouse

By clicking Accept, you agree to the storing of cookies on your device to enhance site navigation, analyze site usage, and assist in our marketing efforts. View our Privacy Policy for more information.